
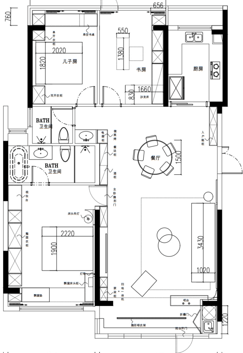
面 積 | 165㎡
01.平面方案

戶型 :四室兩廳三衛
優點:
1、正南向采光保證日間室內明亮有光照,且不會受到陽光直照;
2、餐客一體,生活方便;
3、陽臺較長,具備基礎晾曬功能;
4、主臥套房設計保證業主居住隱私感,增加居住便利性。
缺點:
1、入戶即是廳,缺少過渡空間;
2、全屋收納空間較少;
3、主臥床正對衛生間。
設計思路:
1、客廳與陽臺考慮打通,地面通鋪;
2、主臥床調換床的位置到東側,離衛生間遠些;
3、兒子房小陽臺打通,增加房間面積;
4、書房陽臺地面找平同室內高度,小陽臺不封窗;增加沙發床也可以當做臨時的房間。
02. 設計效果


△ 客餐廳
△ 主臥