
面 積 | 130㎡
平面分析
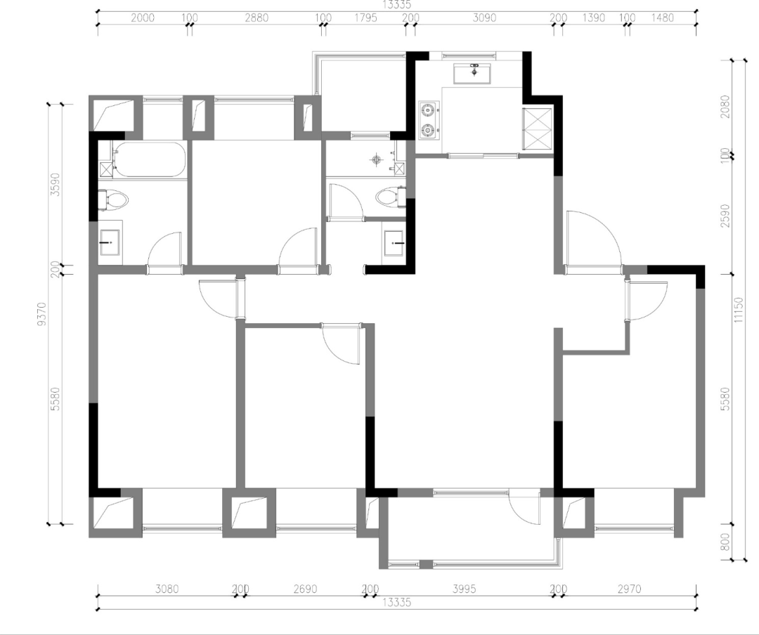
● 原始平面 ●

戶型 :四室兩廳兩衛
優點:
1、標配4房2衛,滿足更多功能需求,可預留空間足夠;
2、南北飄窗較多,拉長空間延伸感;
缺點:
1、單個房間空間局促;
2、全屋收納空間較少。
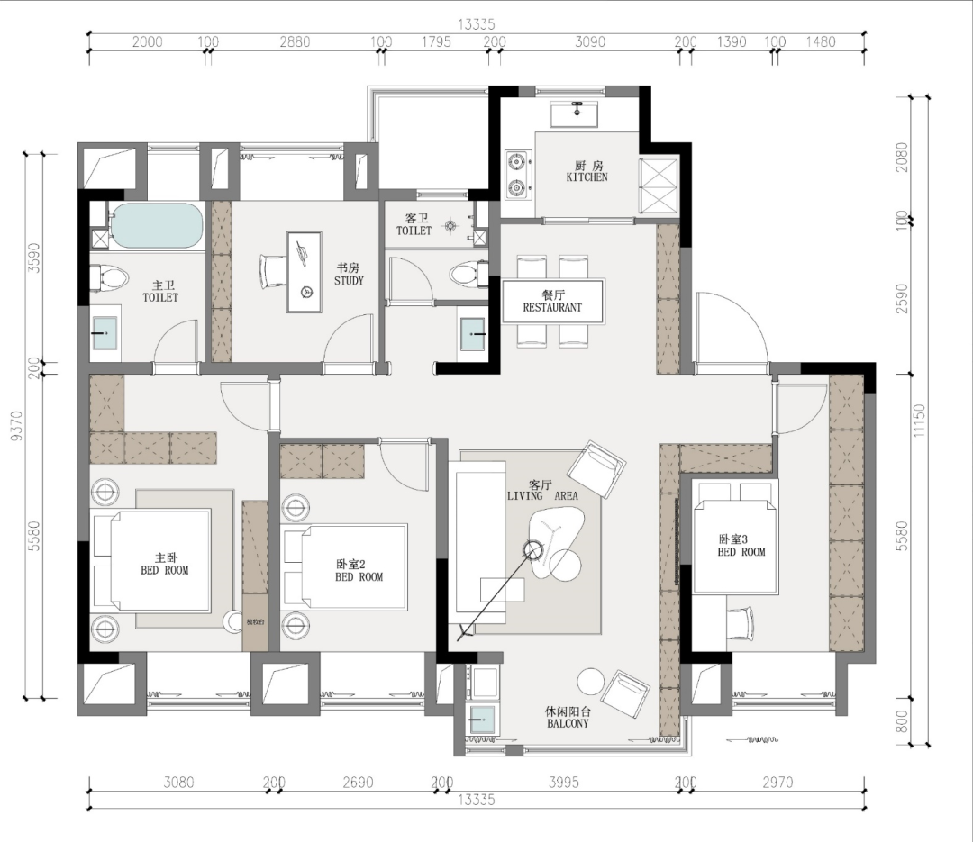
● 平面方案 Ⅰ ●

人物定位:四口之家,一個男孩,一個女孩,需要預留客房
設計思路:基本不更改硬裝結構,在保留四個房間的前提下,增加各個空間的收納空間。北房間用來做多功能房間,以收納和辦公學習為主,保留居住的功能。
● 平面方案 Ⅱ ●

人物定位:三口之家,青少年,偶爾老人過來居住。
設計思路:陽臺打通,打造多功能陽臺。增加門廳換鞋柜和餐廳餐邊柜的儲物功能,保留獨立書房。臥室3增加儲物空間。
● 平面方案Ⅲ ●

人物定位:三口之家,孩子要在自己房間寫作業,偶爾老人過來居住
設計思路:客廳整體打通,視覺上空間增大,增加活動范圍,更好的培養親子感情,北面一個房間改成衣帽間,增加儲物空間。
● 平面方案Ⅳ ●

人物定位:三口之家,孩子要在自己房間寫作業,偶爾老人過來居住
設計思路:門廳增加獨立入戶鞋帽區,客廳整體打通,視覺上空間增大,增加活動范圍,更好的培養親子感情,把北邊一個房間劃分到主臥區域,讓主臥成一個大套間。
軟裝意向分析
● 玄關 ●


對于無玄關的戶型,入戶門左右側有較長的靠墻區域,且安置鞋柜后不會阻礙空間的利用,那么可以將鞋柜平行布局在門體的一側。柜子與門體位于同一方向,進門后的空間感依舊保持寬松舒適,又能實現較大面積的儲物收納空間,狹小的轉角區域亦可以得到合理利用。
● 客餐廳 ●



● 主臥 ●


●次臥 ●


● 衣帽間●
